来源:展陈部 作者:陈真编辑:陈真时间:2025-05-18点击数:
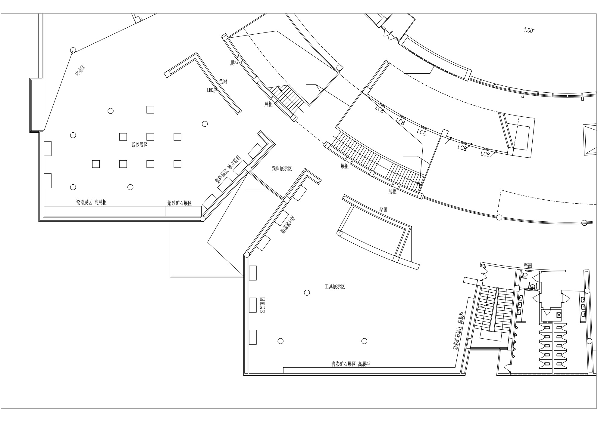
为了适时调整展览布局,节约时间和资源,在本次“国色密码”——矿物颜彩中的科学与艺术特展中,展陈部在策展之前进行了电脑效果图设计,将预期的展览效果可视化。此举在之后的展品陈列布置过程中,能够做到有的放矢,减少来回调动的频率,从而降低了珍贵陈列品的破损风险。
“国色密码”展厅平面图
自然之美展区效果图设计
艺术之美展区效果图设计
生活之美展区效果图设计
上一篇:中国煤炭科技博物馆“息壤”研学活动点亮青少年绿色科技梦
下一篇:我馆面向睢宁县第一中学开展“探索科学 筑梦成长”主题活动
【关闭】